Working Volume on a 4x8 LowRider CNC

Hello!

I’ve been planning a build for a LowRider for a while, but I’d like to confirm the working volume.

I want to be able to cut 4x8 sheet goods edge to edge. If I use the calculator to determine my rail lengths, do I need to add a couple inches to either dimension in order to get the cutter past the edges of the material? I’m not even sure working volume is the right term for this. Any help is appreciated!

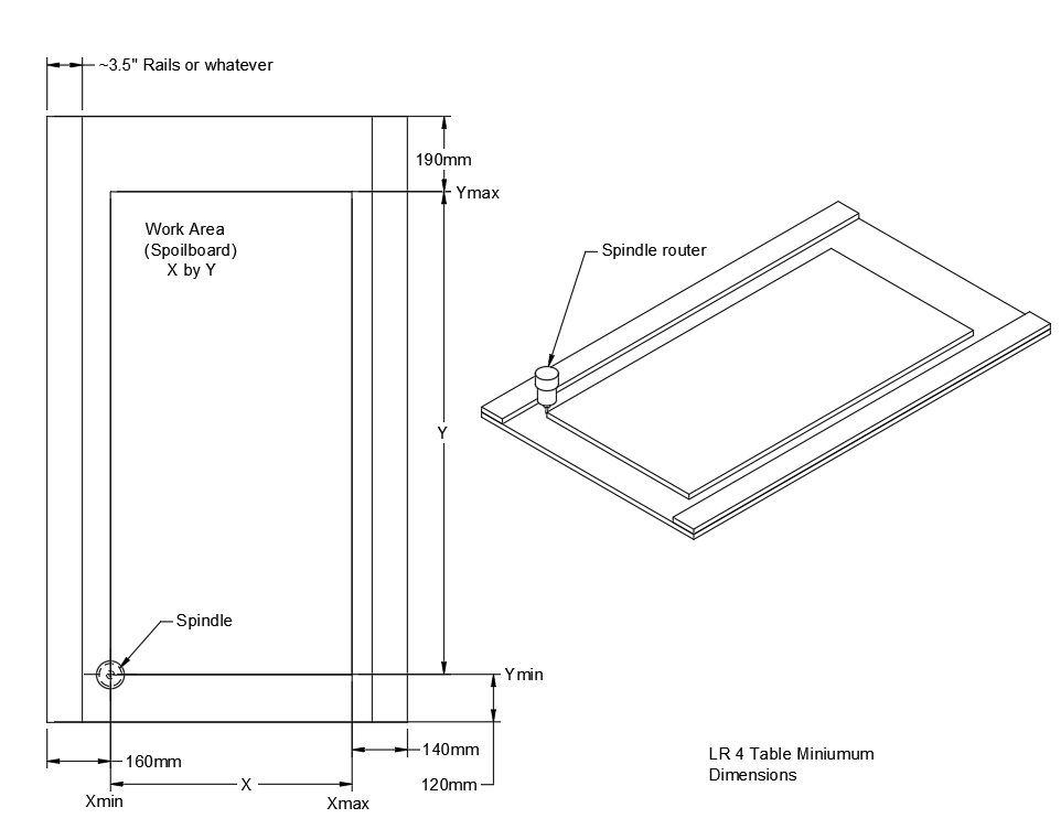
Another member recently posted this image, maybe it will help clarify things for you

1 Like

Did you look at the calculator yet? You specify what you want your cutting area to be, and it gives you the rail lengths to achieve that.

Personally, I would give myself even more room and do like 50”x100” if I was making a full size machine

If this helps at all. For my full built machines for 48" I build the beam at 1400mm. Which is about a half inch wider than what the calculator calls for. The calculator gives the EXACT beam length needed with zero extra room.

3 Likes

What about the number of braces?

1 Like

8 braces is what I use.

3 Likes

It’s easy to forget that if you want to cut a full 4x8 sheet, you actually need the machine’s travel to be slightly larger than the sheet itself to account for the bit diameter and homing.

The build volume is what you especify in the calculator as a work area: 1220*2440 the suggestion for adding a little more is to compensate any pulloff you may need to add to get your build really square and have the final cutting area available. I have built my machines with an extra 50mm just in case

1 Like

If those sheet goods include MDF… add an extra inch anyway.

4x8 MDF sheets are usually 49x97

1 Like